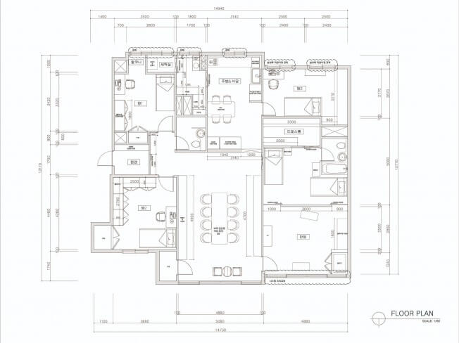
인테리어 설계도면은 전문가만 보는 도면이라고 생각하기 쉽지만, 실제로는 입주자 본인이 해석할 수 있어야 공사 중 문제가 생기지 않습니다.
저는 인테리어 업체 4곳과 미팅을 하고, 실측을 5번이나 진행했지만 결국 기존에 사용하던 가구가 도면대로 들어가지 않아 버려야 했습니다.
도면상 숫자는 분명히 맞았지만, 철거 후 실제 구조와 달라지는 경우가 있었고, 내력벽인지 아닌지의 판별도 업체마다 의견이 엇갈렸어요.
결국엔 아파트 구조를 잘 아는 시공사가 진행하면서 큰 문제 없이 넘겼지만, 그 과정에서 얻은 교훈은 단 하나였어요.
“도면은 보는 것이 아니라, 읽고 의심하는 것이다.”
이 글에서는 실제 공사를 진행하며 겪은 도면 해석의 함정과 실수 방지 팁을 공유합니다.

설계도면은 디자이너와 시공팀이 공사 기준으로 삼는 ‘언어’입니다.
하지만 이 도면을 입주자도 읽을 줄 알아야,
저처럼 가구가 안 들어가서 큰 책장을 버리는 상황을 막고 싶다면, 디자이너가 설명해주는 도면을 수동적으로 듣기만 하지 말고 직접 질문할 수 있는 수준의 이해가 필요합니다.
저는 4개의 인테리어 업체와 미팅을 했고, 그 중 한 곳은 두 차례 실측을 진행했어요.
놀라운 건, 4곳의 실측 도면 숫자가 전부 미세하게 달랐다는 것입니다.
정확한 이유는 다음과 같아요:
이런 상황에서는 어떤 도면을 기준으로 가구를 맞춰야 할까요?
정답은 “최대치보다 여유를 두고 설계하는 것”입니다.
처음에는 도면이 정확한 줄만 알았어요.
하지만 철거 후 벽체 마감이 달라지고, 몰딩과 걸레받이를 제거하면서 실제 내부 벽 사이 공간이 1~2cm씩 차이가 발생했습니다.
예를 들어:
그래서 도면상 크기만 보고 가구를 제작하거나 기존 가구를 그대로 배치하면 낭패를 볼 수 있어요.
가장 헷갈렸던 부분 중 하나는 철거 가능 여부였습니다.
도면상에선 A 벽은 내력벽, B는 가벽이라고 표기됐지만,
관리사무소에 확인해보니 반대인 경우도 있었고,
시공 중 철거하니 구조보강이 필요하다는 말을 들은 적도 있었어요.
💡 TIP:
도어 열림 반경, 손잡이 간섭, 콘센트 위치까지 모두 고려해야 진짜 ‘맞는 공간’이에요.
전선, 빔, 단열재 때문에 공사 중 바뀌는 경우도 생깁니다.
도면상 헷갈리는 부분이 생겼을 때,
저희 인테리어 업체는 해당 아파트 시공 경험이 많아서 큰 혼란 없이 해결할 수 있었어요.
심지어 철거 후 실측이 달라졌을 때도, 빠르게 가구 배치도와 공정 일정을 조정해줘서 일정 지연 없이 마무리할 수 있었습니다.
설계도면은 ‘설계자만 보는 문서’가 아닙니다.
입주자 본인이 중심이 되어 해석하고 질문하고, 필요하면 의심까지 해야 하는 정보의 출발점이에요.
도면에 나와 있는 수치 하나가 생활의 편의성과 만족도를 좌우할 수 있습니다.
앞으로 인테리어를 계획 중이라면,
디자인보다 먼저 도면을 읽는 힘을 먼저 키워보세요.
그 힘이 공사 후의 후회를 막아줍니다.
| 40평대 아파트 인테리어 입주청소 체크리스트 – 놓치기 쉬운 포인트 7가지 (0) | 2025.07.27 |
|---|---|
| 40평 아파트 인테리어 실제 시공 경험을 바탕으로 도장 VS 벽지 마감 – 실물 비교와 선택 기준 (2) | 2025.07.26 |
| 우리집은 왜 공사기간이 늘어났을까? 40평대 아파트 인테리어 일정 관리 실패와 극복 팁 (0) | 2025.07.25 |
| 로봇청소기 효돌이 자리 찾기|40평대 아파트 인테리어의 숨은 하이라이트 (0) | 2025.07.25 |
| 40평대 아파트 인테리어 공사 전 체크리스트 15가지 – 실입주자 경험담 (0) | 2025.07.24 |