집을 바꾸기 전에, 저는 먼저 우리 가족의 일상을 관찰했습니다.
“이 공간을 어떻게 바꾸면 예쁠까?”보다는
“우리는 어떤 삶을 살고 있고, 어떤 삶을 살고 싶은가?”를 먼저 고민했어요.
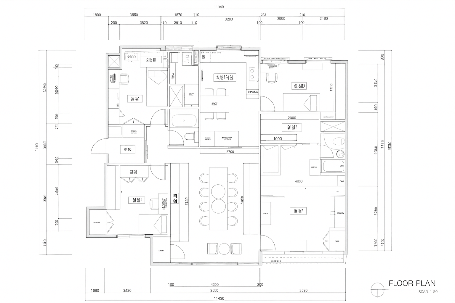
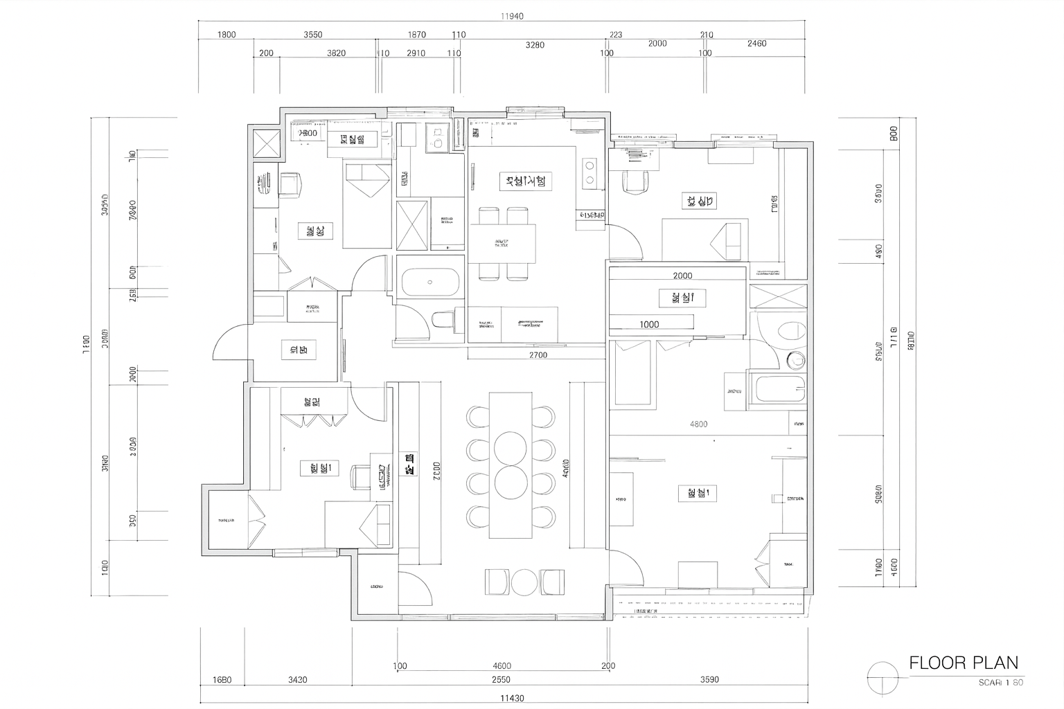
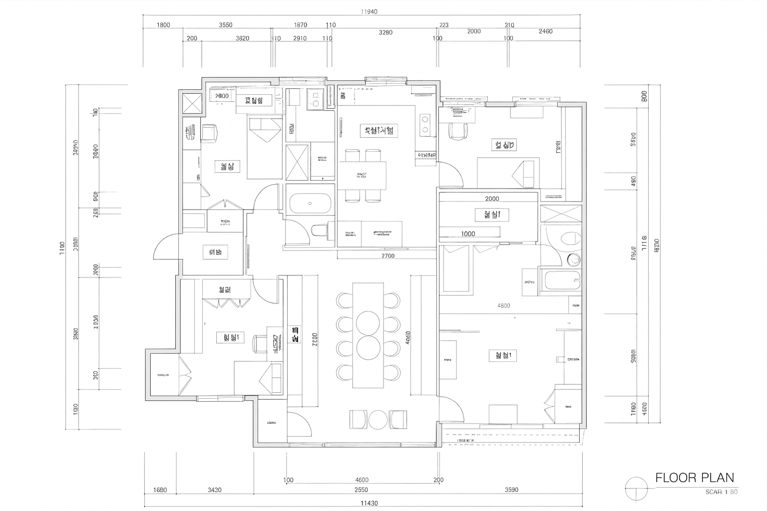
25년 된 40평대 아파트를 리모델링하면서
디자인보다 더 우선한 건 가족의 루틴과 공간 활용 방식이었습니다.
결과적으로, 트렌디하거나 비싼 자재보다
우리 가족에게 맞는 구조, 조도, 가전 배치가 만족도를 높였고
지금은 누구보다 편안하게 일상을 보내고 있습니다.
이 글은 인테리어를 디자인보다 삶의 방식으로 접근한 후기이며,
예쁜 집이 아닌 살기 좋은 집을 원하시는 분들께 도움이 되었으면 합니다.

인테리어를 준비하며 가장 먼저 했던 일은
우리 가족의 일상 패턴을 기록하는 것이었어요.
이런 기록을 통해 공간을 어떻게 바꿔야 할지가 자연스럽게 드러났고,
디자인은 그 다음에 결정하는 일이 되었어요.
패턴을 분석한 뒤, 집을 이렇게 바꿨어요.
이렇게 바꾸고 나니
우리 가족이 이 공간에서 어떤 감정과 움직임을 느끼는지가 전혀 달라졌습니다.
인테리어를 마치고 나니, 주변에서 “예쁘다”는 말도 많이 들었지만
가족끼리는 이런 얘기를 더 많이 했습니다:
이건 단순한 인테리어 성공이 아니라,
우리 삶의 리듬을 정확히 이해하고 맞춘 결과라고 생각합니다.
큰돈을 들이지 않아도 만족도가 높은 이유는
우리 가족에게 꼭 필요한 부분부터 설계했기 때문이에요.
예를 들면,
이렇게 ‘예쁘게’보다 ‘잘 맞게’를 기준으로 선택하니
돈은 덜 들었지만 훨씬 만족스러웠습니다.
예쁜 집 사진을 많이 보는 것도 좋지만,
가장 먼저 해야 할 질문은 이겁니다.
“지금 나는 어떤 공간에서, 어떤 방식으로 살아가고 있는가?”
“무엇이 불편했고, 무엇을 바꾸고 싶은가?”
“그 변화는 가족 모두에게 어떤 영향을 줄까?”
이 질문에 솔직해지면
남의 집처럼 보이던 인테리어가
나의 삶에 꼭 맞는 공간으로 바뀌는 시작이 됩니다.
| 인테리어 실패를 막는 3단계– 구상 시점, 업체 선정, 그리고 커뮤니케이션 (0) | 2025.08.05 |
|---|---|
| 인테리어의 진짜 시작은 우리 가족을 아는 것부터– 40평대 아파트 리모델링 설계 전략 공유 (2) | 2025.08.04 |
| 25년 된 아파트 인테리어, 먼저 해야 할 건 공간보다 ‘사람’에 대한 설계였다– 예쁜 집보다 ‘나에게 맞는 집’을 만드는 과정 (0) | 2025.08.03 |
| 실거주 맞춤 인테리어, 어디서부터 시작해야 할까?– 25년차 40평 아파트 리모델링의 핵심은 ‘라이프스타일’ (0) | 2025.08.03 |
| 40평 아파트 인테리 단차 없애기 vs 유지하기 – 실제 선택과 생활 변화 (1) | 2025.08.01 |